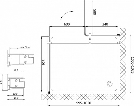
Душевой уголок Vegas Glass AFP-Fis 0100 05 01 R 100 см купить в Москве дешево
Мы используем файлы 'cookie', чтобы обеспечить максимальное удобство пользователям.