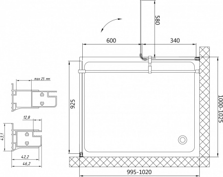
Душевой уголок Vegas Glass AFP-Fis 0100 07 10 L 100 см купить в Москве дешево
Мы используем файлы 'cookie', чтобы обеспечить максимальное удобство пользователям.