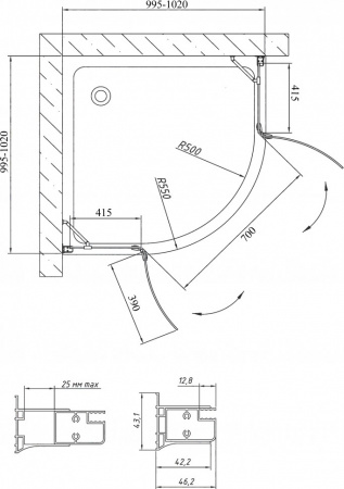
Душевой уголок Vegas Glass AFS 0100 01 01 100 см купить в Москве дешево
Мы используем файлы 'cookie', чтобы обеспечить максимальное удобство пользователям.