- Энергоэффективность благодаря уникальному погодозависимому алгоритму двойного регулирования нагрева, который учитывает температуры воздуха, уличную и комнатную температуру, а также их динамику
- Возможность управления котлом в автоматическом режиме по текущему уровня теплопотерь, погоде, целесообразности
- Возможность ограничения мощности в ручном режиме для экономии электроэнергии
- Возможность использования в качестве теплоносителя как воды, так и незамерзающих жидкостей, сертифицированных для систем отопления
- Аварийный самовозвратный датчик (температура срабатывани 92 ± 3°)
- Антизамерзание теплоносителя в системе отопления
- Защита от токов короткого замыкания и перегрузки
- Предусмотрена защита от избыточного давления
- Защита от отказа (обрыва или короткого замыкания) датчиков температуры и давления
- Автоматическое переключение при попадании фазы на оставшуюся с последующим восстановлением равномерности расхода ресурса
- Настройка температурных режимов в недельном расписании, программирование суточной и недельной температуры воздуха помещения
- Графический дисплей с интуитивно понятной навигацией по настройкам и режимам работы
- Возможность подключения модуля дистанционного управления
- Возможность управления ГВС (трехходовым клапаном, устройством контроля температуры воды в косвенном водонагревателе)
- Накопление статистики энергопотребления и температур
- Уникальный режим проверки срабатывание каждого из органов управления котла
|
Страна
? Основная страна в которой находится фирма или страна производства |
Россия |
|
Производитель
|
Эван |
|
Серия
|
Practic |
|
Мощность, кВт
|
36 |
|
Гарантия
|
1 год |
|
Отапливаемая площадь, м2
|
360 |
|
Вид топлива
|
электричество |
|
Количество контуров
|
одноконтурный |
|
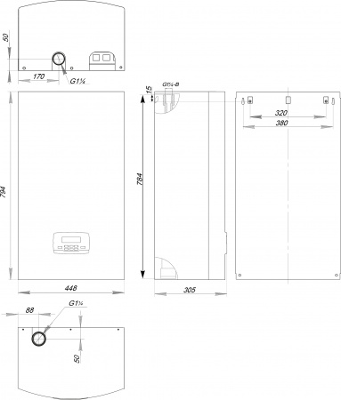
Высота, см
|
79.4 |
|
Ширина, см
|
44.8 |
|
Глубина, см
|
30.5 |
|
Цвет
|
белый |
|
Дополнительные функции
|
ступенчатое включение мощности / бесшумная работа / возможность подключения водонагревателя / возможность подключения датчика уличной температуры / защита от скачков напряжения / контроль превышения напряжения / временная выдержка / таймер |
|
Код товара
|
14420 |
|
Оснащение
|
термозащита / датчик комнатной температуры / датчик наружной температуры / теплоизоляция / крепления / плата управления |
|
Комплектация
|
Электрический котел Эван Practic 36 |
|
Электропитание, В
|
380 |
|
Монтаж
|
настенный |
|
Управление
|
электронное |
|
Защита от перегрева
|
есть |
Для покупки товара в нашем интернет-магазине выберите понравившийся товар и добавьте его в корзину. Далее перейдите в Корзину и нажмите на «Оформить заказ» или «Быстрый заказ».
Когда оформляете быстрый заказ, напишите ФИО, телефон и e-mail.
Вам перезвонит менеджер и уточнит условия заказа. По результатам разговора вам придет подтверждение оформления товара на почту или через СМС. Теперь останется только ждать доставки и радоваться новой покупке.
Оформление заказа в стандартном режиме выглядит следующим образом:
Заполняете полностью форму по последовательным этапам: адрес, способ доставки, оплаты, данные о себе. Советуем в комментарии к заказу написать информацию, которая поможет курьеру вас найти. Нажмите кнопку «Оформить заказ».
Оплачивайте покупки удобным способом. В интернет-магазине доступно 2 варианта оплаты:
- Наличные при самовывозе или доставке курьером. Специалист свяжется с вами в день доставки, чтобы уточнить время и заранее подготовить сдачу с любой купюры. Вы подписываете товаросопроводительные документы, вносите денежные средства, получаете товар и чек, товарную накладную,гарантию на товар.
- Безналичный расчет как юридическое лицо. Для этого необходимо отправить нам по электронной почте реквизиты вашей организации.
Экономьте время на получении заказа. В интернет-магазине доступно 3 варианта доставки:
- Курьерская доставка по Москве и Московской области работает с 9.00 до 19.00. Отдел доставки заранее свяжется с Вами для уточнения деталей. Специалист предложит выбрать удобное время доставки и уточнит адрес.
- Самовывоз из магазина. Список торговых точек для выбора появится в корзине. Когда заказ поступит на склад, вам придет уведомление. Для получения заказа обратитесь к сотруднику отдела продаж.
- Отправка через транспортные компании: "Деловые Линии", "СДЭК", "ПЭК" и другие. Когда заказ будет передан в отделение ТК, вам поступит уведомление и номер отслеживания заказа.
