на лучшие бренды
всем клиентам
по России за 24 часа
от производителей
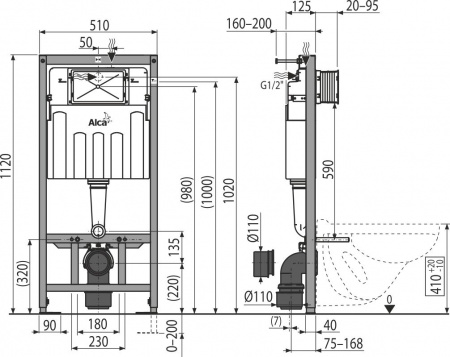
Для установки подвесного унитаза с расстоянием между точками крепления 180 или 230 мм подойдет система инсталляции AlcaPlast Sadromodul AM101/1120. Изделие выполнено в виде рамного модуля для монтажа к гипсокартонной конструкции. Выполненная из металла несущая конструкция обработана порошковой краской, которая обеспечивает длительный срок службы. При помощи выдвижных ножек можно отрегулировать высоту унитаза в диапазоне 0–200 мм. Установленная система закрывается гипсокартонным листом и не нуждается в дополнительных крепежных элементах.
Дополнительные характеристики:
- Конструкция рамы позволяет установку к самостоятельной гипсокартонной перегородке или перед несущей стеной
- Регулируемый объем смыва
|
Страна
? Основная страна в которой находится фирма или страна производства |
Чехия |
|
Производитель
|
AlcaPlast |
|
Серия
|
A101 Sadromodul |
|
Гарантия
|
6 лет |
|
Область применения
|
бытовая, для общественных мест |
|
Диаметр слива, см
|
9 |
|
Высота, см
|
117 |
|
Ширина, см
|
51 |
|
Глубина, см
|
20 |
|
Код товара
|
336954 |
|
Тип
|
монтажные рамы |
|
Оснащение
|
крепления, смывной бачок |
|
Подвод воды
|
Сверху бачка |
|
Метод крепления
|
В капитальную стену и пол |
|
Монтажная высота, см
|
117 |
|
Монтажная глубина, см
|
20 |
|
Диаметр переходника для слива, см
|
11 |
|
Межосевое расстояние под крепеж. шпильки, см
|
23, 18 |
|
Управление
|
Механическое |
|
Режим слива воды
|
две кнопки (режим эконом) |
Для покупки товара в нашем интернет-магазине выберите понравившийся товар и добавьте его в корзину. Далее перейдите в Корзину и нажмите на «Оформить заказ» или «Быстрый заказ».
Когда оформляете быстрый заказ, напишите ФИО, телефон и e-mail.
Вам перезвонит менеджер и уточнит условия заказа. По результатам разговора вам придет подтверждение оформления товара на почту или через СМС. Теперь останется только ждать доставки и радоваться новой покупке.
Оформление заказа в стандартном режиме выглядит следующим образом:
Заполняете полностью форму по последовательным этапам: адрес, способ доставки, оплаты, данные о себе. Советуем в комментарии к заказу написать информацию, которая поможет курьеру вас найти. Нажмите кнопку «Оформить заказ».
Оплачивайте покупки удобным способом. В интернет-магазине доступно 2 варианта оплаты:
- Наличные при самовывозе или доставке курьером. Специалист свяжется с вами в день доставки, чтобы уточнить время и заранее подготовить сдачу с любой купюры. Вы подписываете товаросопроводительные документы, вносите денежные средства, получаете товар и чек, товарную накладную,гарантию на товар.
- Безналичный расчет как юридическое лицо. Для этого необходимо отправить нам по электронной почте реквизиты вашей организации.
Экономьте время на получении заказа. В интернет-магазине доступно 3 варианта доставки:
- Курьерская доставка по Москве и Московской области работает с 9.00 до 19.00. Отдел доставки заранее свяжется с Вами для уточнения деталей. Специалист предложит выбрать удобное время доставки и уточнит адрес.
- Самовывоз из магазина. Список торговых точек для выбора появится в корзине. Когда заказ поступит на склад, вам придет уведомление. Для получения заказа обратитесь к сотруднику отдела продаж.
- Отправка через транспортные компании: "Деловые Линии", "СДЭК", "ПЭК" и другие. Когда заказ будет передан в отделение ТК, вам поступит уведомление и номер отслеживания заказа.
