на лучшие бренды
всем клиентам
по России за 24 часа
от производителей
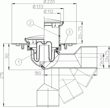
Трап HL80.1R предназначен для установки во внутренних помещениях и отвода в канализацию сточных вод с уровня пола и гидроизоляции.
Технические характеристики:
Максимальная разрешенная нагрузка до 300 кг
Рабочая температура до +85°С
Срок службы не менее 50 лет
Особенности монтажа:
1. Высота надставного элемента трапа регулируется от 20 до 75 мм (подрезается по высоте стяжки). При необходимости увеличить высоту применяются удлинители HL340N.
2. В зависимости от типа гидроизоляции используются следующие гидроизоляционные комплекты:
| Листовая гидроизоляция 
           | Наливная 
           (двухкомпонентная)  | |||
| EPDM | ПВХ | ПП | Битумная | |
| HL83 | HL83.P | HL83.PP | HL83.H | HL83.M | 
| HL83.0 
           | ||||
3. Выпускной патрубок трапа HL80.1R предназначен для соединения с любой канализационной раструбной трубой из ПВХ или ПП (REHAU, WAVIN и т.д.). Если для ливневой канализации применяются стальная или чугунная безраструбная труба (SML), необходимо использовать переходник с ПП/ПВХ на Чугун/Сталь.
4. Если диаметр присоединяемой канализационной трубы DN50, то необходимо на отводящем патрубке трапа отрезать участок DN75.
5. До завершения монтажных работ, для исключения попадания посторонних предметов в систему канализации, в корпус трапа устанавливается монтажная заглушка (идёт в комплекте). При установке надставного элемента, который подрезается в зависимости от необходимой высоты, она удаляется.
После завершения монтажных работ в надставной элемент устанавливается решетка из нержавеющей стали.
Монтажные заглушки подлежат утилизации.
| 
										 
											Страна
											 
									? 										Основная страна в которой находится фирма или страна производства  | 
									Австрия | 
| 
										 
											Производитель
																					 
									 | 
									HL | 
| 
										 
											Серия
																					 
									 | 
									R | 
| 
										 
											Цвет
																					 
									 | 
									хром глянцевый | 
| 
										 
											Решетка в комплекте
																					 
									 | 
									да | 
| 
										 
											Материал решетки
																					 
									 | 
									нержавеющая сталь | 
| 
										 
											Материал конструкции
											 
									? 										Материал самого лотка/трапа, не учитывая решетку  | 
									пластик | 
| 
										 
											Цвет решетки
																					 
									 | 
									хром | 
| 
										 
											Форма
																					 
									 | 
									круглая | 
| 
										 
											Монтаж
											 
									? 										С фартуком - пристенный. В стену только "Vario в стену". Остальные в пол.  | 
									в полу | 
| 
										 
											Монтажная высота, мм
																					 
									 | 
									165-290 | 
| 
										 
											Пропускная способность, л/с
																					 
									 | 
									0.50 | 
| 
										 
											Диаметр слива, мм
																					 
									 | 
									75 | 
| 
										 
											Вид решетки
											 
									? 										Решетки для плитки надо выбирать вместе с щелевыми (зажимая Ctrl)  | 
									перфорированная | 
Для покупки товара в нашем интернет-магазине выберите понравившийся товар и добавьте его в корзину. Далее перейдите в Корзину и нажмите на «Оформить заказ» или «Быстрый заказ».
 Когда оформляете быстрый заказ, напишите ФИО, телефон и e-mail. 
Вам перезвонит менеджер и уточнит условия заказа. По результатам разговора вам придет подтверждение оформления товара на почту или через СМС. Теперь останется только ждать доставки и радоваться новой покупке.
Оформление заказа в стандартном режиме выглядит следующим образом:
Заполняете полностью форму по последовательным этапам: адрес, способ доставки, оплаты, данные о себе. Советуем в комментарии к заказу написать информацию, которая поможет курьеру вас найти. Нажмите кнопку «Оформить заказ».
Оплачивайте покупки удобным способом. В интернет-магазине доступно 2 варианта оплаты:
- Наличные при самовывозе или доставке курьером. Специалист свяжется с вами в день доставки, чтобы уточнить время и заранее подготовить сдачу с любой купюры. Вы подписываете товаросопроводительные документы, вносите денежные средства, получаете товар и чек, товарную накладную,гарантию на товар.
 - Безналичный расчет как юридическое лицо. Для этого необходимо отправить нам по электронной почте реквизиты вашей организации.
 
Экономьте время на получении заказа. В интернет-магазине доступно 3 варианта доставки:
- Курьерская доставка по Москве и Московской области работает с 9.00 до 19.00. Отдел доставки заранее свяжется с Вами для уточнения деталей. Специалист предложит выбрать удобное время доставки и уточнит адрес. 
 - Самовывоз из магазина. Список торговых точек для выбора появится в корзине. Когда заказ поступит на склад, вам придет уведомление. Для получения заказа обратитесь к сотруднику отдела продаж.
 -  Отправка через транспортные компании: "Деловые Линии", "СДЭК", "ПЭК" и другие. Когда заказ будет передан в отделение ТК, вам поступит уведомление  и номер отслеживания заказа. 
 
